平屋ってほんとうに高い?
平屋のデメリットとしてよく言われるのが、「高い」という事。本当でしょうか?SUMIKA Labで研究をした結果「半分本当で半分ウソ」という事がわかってきました。
1階と2階の面積や形が同じ「総二階建て」の家では「本当」子供部屋だけ2階の「一部2階建ではウソ」という事が判明したのです。
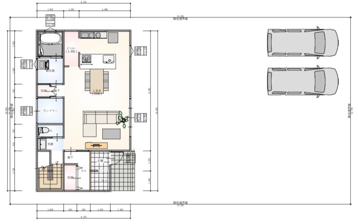
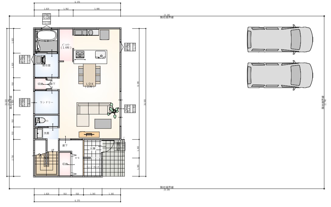
こちらを見てください。

一部2階建て33.5坪(子供部屋だけ2階)

平屋27.9坪「こちらの方が300万円も安い」
この間取りを見積もった結果、平屋27.9坪の方が300万円も安く建てられることがわかりました。
各部屋の大きさや使い勝手はほとんど変わりません。
平屋はルンバ1台で勝手に掃除してくれます。
皆さんならどちらを選びますか?
平屋のメリットは他にもたくさんあります。

10年しか使わないかもしれない子供部屋
子供さんが一人部屋を使うのは10歳から20歳前後の10年前後が比較的多いです。中には折角子供部屋を作ってもほとんど使わなかったという方もいるくらい。親御さんの理想通りにはなかなか育たないものです。
子供部屋7畳(クローゼット含む)2部屋、廊下を合わせると8坪前後になります。よくある坪単価という基準で、50万円/坪だったとすると400万円前後かかります。
平屋の場合も子供部屋は必要で2階の子供部屋以上にお金はかかりますが、平屋の子供部屋は、将来足腰が悪くなっても物入として、また夫婦別室になった時の個室として使う事が可能です。
将来増築の可能性
2階建てで1階に寝室が無かった場合、歳をとって階段が登れなくなったから寝室を増築する方が多くいます。
代表の太田の実家も多分に漏れず、大金をかけて寝室を増築しました。
10畳(クローゼット含む)の増築費用:3,000,000円
階段の費用
平屋にはもちろん階段がありません。階段にどれくらいの費用がかかっているでしょうか。
階段の本体費用:300,000円
階段の床面積4坪:2,000,000円
階段への動線で必要になる面積1坪:500,000円
計2,700,000円
余った敷地の外構費用やメンテナンス費用

飯田下伊那地域で不動産屋さんが扱っている土地は80坪以上の広い土地がほとんどです。
90坪の土地に2階建てで床面積が35坪の家を建てたらどうでしょう?
1階床面積は約20坪。
残る面積は70坪。
駐車場とアプローチで20坪使ったとしても残る面積は50坪(145㎡)。
外構費用はピンキリですが、広ければ広いほど高額になります。
その他リスクを費用化してみたら
家族が階段から落ちるリスク:1,000,000円
毎日階段を上下する時間とそのストレス
20秒/1往復×365日×35年×2人×時給2,000円=5,677,000円
計6,677,000円
可能性まで考慮すると大変なお金がかかります。
中には1階に主寝室を作ることで解決することもありますが、数百万単位の差額が出てきます。
その他の平屋のメリット
平屋は他にもたくさんメリットがあります。
・太陽光パネルがたくさん載る(最大20kwくらいまで)
・メンテナンス時の足場代が安い
・断熱性能を高くしやすい
・耐震性が高い
・家具の搬入が楽
子育ての為の平屋という考え方

平屋と聞くと、老後の生活の為というイメージが大きいと思いますが、私たちは子育て世帯にこそ平屋だと思っています。その理由は
1.階段が無いから子供が落ちる心配が無い
これは私達が子育てしているから身に染みてわかる事です。子供が階段周りで遊んでると心配で家事もできません。私の家族の話ですが、自宅の階段から大きな音がしたので、子供が落ちたと思って夫婦そろって大慌てで駆け付けたら、子供が階段上からおおきなぬいぐるみを落として遊んでたという事がありました。生きた心地がしませんでした。
2.家事が楽になる
子供がいると洗濯物は多くなるし、食べこぼしの掃除も増える、おもちゃの毎日の片付け等々、ものすごく忙しくなります。すべての家事や生活が1階で完結したとするとおのずと家事動線は短くなり家事もすごく楽になります。
それに洗濯物干し場が2階だったらどうでしょう?ものすごく重いかごを持って階段を上がらなくてはいけません。
週末の掃除機掛けもロボット掃除機を使えばほっといても毎日全部屋掃除してくれるなんて事も可能です。
3.目が行き届く
家の中のどこに子供がいるか、お父さんが帰ってきたかどうかなど、何となく常に感じ取ることができます。
平屋のメリットまとめ
完成見学会で体感してください
完成見学会では平屋も多くございます。
予約制で見学できますので、お問合せください。
LINE公式アカウントまたはフォーム、お電話からお願いします。
